Ak hľadáte jedinečný priestor na realizovanie svojich snov alebo len chcete podnikať v priestoroch aké nik iný nemá, naše administratívne priestory vám to určite splnia.
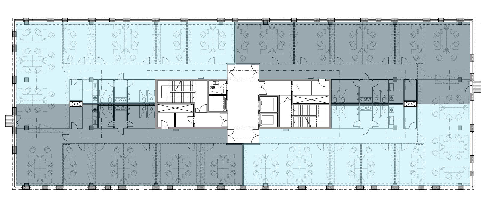
Dve administratívne budovy B a C ponúkajú priestory od 2.NP po 6.NP, každé s výmerou 930 m² a výškou 2,93m, čo dodáva kanceláriám mimoriadnu eleganciu. V prízemnom parteri sa nachádzajú reštaurácie, kaviarne a street foodové prevádzky.
- Parkovanie je zabezpečené v podzemnej 2-podlažnej garáži.
- Predajná cena administratívnych priestorov je 1.700€/m² bez DPH.
- Cena parkovacieho miesta je 10.000€/miesto bez DPH – počet parkovacích miest nie je limitovaný.
- Minimálna plocha na predaj a prenájom je cca 230m²



